Symphony Towers

Designed by Skidmore, Owings and Merrill, Symphony Towers is widely seen as one of Downtown's premier locations. Located on B Street in the Financial District, this granite-clad tower offers great views as well as on-site and nearby amenities. Customers include San Diego Convention & Visitor's Bureau and Seltzer Caplan McMahon Vitek.

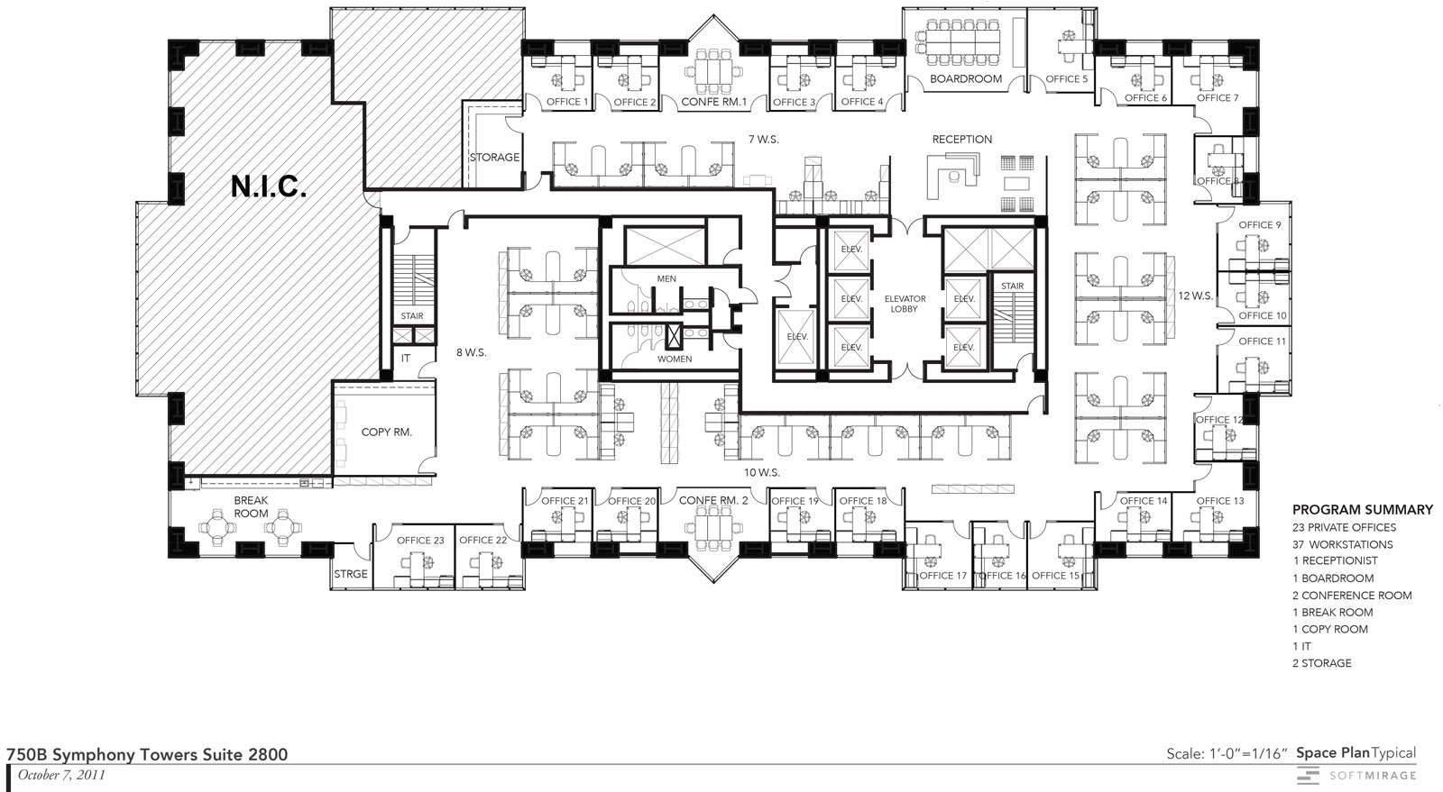
SoftMirage provided marketing assistance with a touchscreen and an interactive website for potential buyers and interested parties as viewers.

To view the property's touchscreen interface, please visit iopdvx.com/touchscreen/symphony

Acquisition, Design and Art Selection, Interactive Media, Print Collateral,